TN License # 85526

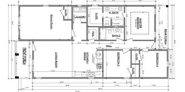
4 bedroom 2 bath 1868 sf homes each on a quarter of an acre. Great views from the front porch and private wooded rear yards.

Comfortable one level living featuring a master suite with trey ceilings, walk-in shower and large closet. Also includes a walk-in pantry off the spacious kitchen with center island. Large bonus room or optional 4th bedroom.

Ironstone siding, black windows and wood accents
Interior features matte black finishes, wood accents, lvp flooring, custom lighting and tiled master bath
completion date end of Sept 2025

Blue and khaki siding with white prairie style windows
light and elegant interior finishes
completion date mid Oct

breaking ground Sept 1

break ground date pending
We use cookies to analyze website traffic and optimize your website experience. By accepting our use of cookies, your data will be aggregated with all other user data.